TORNA INDIETRO
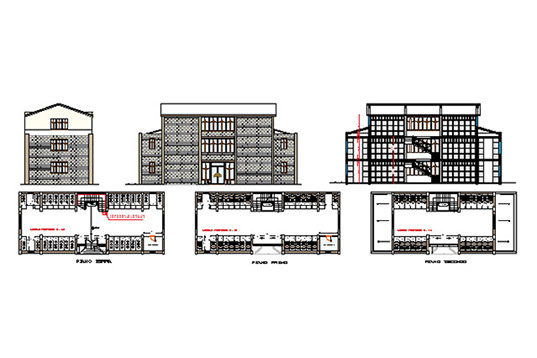
Costruzione di confraternita cimiteriale di n. 252 loculi. comprese opere di urbanizzazione primarie e secondarie sito nel nuovo cimitero di Gela
Piante prospetti e sezione
Loculi in cemento armato
Getto dei pilastri in cemento armato
Cirignotta Immobiliare s.r.l.
93012 Gela Italia
tel. +39 340 5179149
fax +39 0933 828382